Летний душ своими руками — пошаговое возведение каркасной конструкции
С приходом очередного летнего сезона многие владельцы дач и частных усадеб задумываются о постройке летнего душа. Как правило, для возведения подобного сооружения можно всегда найти материал, оставшийся от проводимых ранее ремонтных и строительных работ. Недостающие стройматериалы для возведения каркаса и пластмассовая емкость для воды приобретаются дополнительно в специализированных магазинах или на рынках. Сделать летний душ своими руками может каждый мужчина, обладающий небольшими знаниями в строительном деле и умеющий держать в руках инструмент.
Основные конструктивные элементы летнего душа
Простейшая конструкция летнего душа состоит из прямоугольной кабинки, длина сторон которой выбирается с учетом комплекции людей.
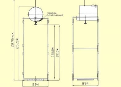
В кабинке не должно быть слишком тесно. Оптимальные габаритные размеры кабинки представлены на схеме.

Необходимо предусмотреть дополнительное пространство, защищенное от попадания брызг воды, в котором будут размещаться личные вещи и гигиенические принадлежности
Как видите, ширина, как и длина, кабинки составляет 894 мм, высота до лейки душа – 1860 мм или 1910 мм. Высота всего сооружения с учетом резервуара для воды, расположенного на крыше строения, насчитывает 2520 мм или 2870 мм.
Важно! При наличии свободного места на участке можно ширину или длину кабинки увеличить хотя бы до 100 мм, чтобы немного расширить полезную площадь сооружения.
Как небольшому сооружению придать устойчивость?
Чтобы построенный из бруса каркас для летнего душа стоял устойчиво, необходимо подвести под него свайный фундамент. Для этого садовым буром прорывают в грунте отверстия на глубину метр-полтора и опускают туда трубы так, чтобы их концы торчали над поверхностью земли на 25-30 см. В качестве свай можно использовать асбестоцементные трубы диаметром 100 мм. Также подойдут для фундамента и металлические трубы соответствующего диаметра.
Важно! Чтобы каркас мог выдержать вес резервуара, заполненного водой, необходимо брать для его сооружения брус 100 на 100 мм. Деревянный каркас прослужит дольше, если его пропитать специальными водоотталкивающими средствами.
На фундамент устанавливают хорошо обтесанный брус, и приступают к перевязке столбов, начиная сверху. При этом раму, конечно же, собирают на земле, а затем крепят ее к столбам с помощью болтов достаточной длины. После выполняют перевязку внутри каркаса душевой кабины. При этом нижняя перевязка будет использоваться в качестве лаг для устройства пола в летнем душе. Ранее пол в летнем душе устраивали из досок, между которыми оставляли широкие щели для стока воды. Сейчас наряду с эти вариантом используют установку поддона, от которого с помощью шланга отводится вода на траву. Соседние столбы скрепляют укосами – жесткими элементами, устанавливаемыми не в накладку.
Устройство септика для сбора стоков
Планируя устройство летнего душа на даче с септиком для сбора стоков, необходимо помнить о том, что размещать его нельзя непосредственно под кабинкой. При игнорировании данной рекомендации может появиться неприятный, довольно специфический, запах в душевой кабинке. Помимо этого могут возникнуть более серьезные проблемы, связанные с разрушением грунта и фундамента. Поэтому септик располагают в нескольких метрах от места установки душевой кабинки. Выводят в септик сливную трубу или канавку-сток, которую обустраивают водоупорным материалом (рубероидом, ПВХ-пленкой, гидростеклоизолом).
Какие материалы используют для отделки?
Для одного сезона можно обтянуть каркас и непрозрачной полиэтиленовой пленкой. Однако это совсем уж бюджетный вариант.
Обычно каркас обшивают одним из следующих материалов:
- влагостойкой фанерой;
- листами шифера, как волновыми, так и плоскими;
- вагонкой;
- ДВП;
- сайдингом;
профлистом и др.

Сделать летний душ на даче своими руками и установить емкость на крыше для нагрева воды под силу любому мужчине
Важно! Для сохранения единства стиля в оформлении дачи или приусадебного участка рекомендуется обшивать самодельный летний душ теми материалами, которые уже использованы в рядом расположенных строениях.
Вместо двери можно использовать водонепроницаемую шторку, легко сдвигаемую в сторону после окончания водных процедур. Однако деревянные двери придают конструкции более эстетичный и надежный вид. Можно закрыться и спокойно принимать душ, не беспокоясь о том, что кто-то нечаянно или специально нарушит ритуал.
Как правильно крепить лейку?
Бочку или иную емкость для воды устанавливают на крыше летнего душа. Для лучшего и быстрого нагрева воды солнечными лучами, поверхность резервуара рекомендуют окрашивать в черный цвет. Наполнение емкости водой осуществляют вручную или же с помощью насоса. При этом устанавливают сантехнический клапан, позволяющий вовремя перекрывать воду после полного наполнения бочки.
От емкости, имеющей специальное отверстие, отводят трубу с краном и лейкой. Если отверстия в бочке нет, то его проделывают и вставляют трубу с душевым рожком на конце. Поступление воды регулируется с помощью крана или специального ножного устройства, позволяющего экономно расходовать нагретую солнцем воду.
Важно! Чтобы не зависеть от погодных условий и количества солнечных дней в месяце, можно построить летний душ с подогревом воды. Для этого используют электронагреватель.
Когда строим летний душ на даче, используем следующие хитрости:

Некоторые хитрости устройства летнего душа на даче своими руками
- а) Поплавковый заборник позволяет использовать теплую воду с верхнего слоя, наиболее прогреваемого солнцем.
- б) Кран с ножным приводом, позволяющий экономить воду. Леска от ножной педали проходит через блок и подсоединяется к оттяжной пружине и к крану, угол открытия которого составляет 90°.
- в) Усовершенствованная схема подсоединения нагревателя к резервуару, способствующая равномерному прогреву воды солнцем.
Вот видите, построить летний душ своими руками, действительно, не так уж и сложно. К большому желанию надо добавить чуть-чуть фантазии и затратить немного времени на реализацию задуманного.
