Самодельный пиролизный котел: сооружаем отопительный агрегат своими руками
Чем отапливать дом в холодные зимние дни? Доступ к газовой магистрали есть не везде, да и цены на «голубое топливо» постоянно растут. Дровами или углем — неудобно, электричеством — слишком дорого. Там, где есть возможность использовать в качестве топлива древесину или специальные прессованные брекеты, оптимальным выходом считается установка, в которой используются принципы пиролизного горения. КПД такого агрегата довольно высок, но цены на промышленные модели ощутимо «кусаются». Очевидное решение проблемы — изготовить пиролизный котел своими руками. Немало умельцев успешно осуществили этот сложный процесс. Давайте и мы с вами разберемся в этом вопросе.
Что вообще такое пиролизное горение?
Топить дровами не слишком удобно, поскольку в обычных условиях древесина сгорает очень быстро, а значительная часть тепла при этом не используется. Приходится постоянно загружать топливо в котел или печь. Пиролиз предполагает создать такие условия, при которых топливо сгорает значительно медленнее, отдавая при этом заметно большее количество тепла. Достигается такой эффект, когда древесина сгорает при пониженном содержании кислорода, т. е. очень медленно. В результате образуется зола, кокс и горючий газ.
Этот газ в пиролизной установке смешивается с воздухом и тоже сгорает при очень высоких температурах, выделяя значительное количество тепловой энергии. Таким образом, принцип работы пиролизного котла включает два этапа горения:
- сначала при ограниченном поступлении кислорода сгорает древесина, выделяя горючий газ;
- затем происходит сгорание воздушно-газовой смеси.
Подобный принцип двухэтапного горения используется в различных самодельных установках, например, в дровяной печи медленного сгорания и даже в твердотопливных генераторах, позволяющих использовать дрова в качестве топлива для автомобилей. Однако работу пиролизного котла следует правильно отрегулировать, чтобы не повредить отопительную систему дома.
Высокая цена промышленных котлов вполне оправдана. Во-первых, потому что при их создании используются высококачественные материалы, способные выдерживать высокую температуру горения (жаростойкое железо, 8-миллиметровая легированная сталь, шамотная глина и т.п.). Во-вторых, из-за сложной системы автоматического управления, которая и обеспечивает высокую эффективность работы оборудования.
Чтобы обеспечить максимальный эффект горения, учитывается температура прогрева дров и их исходная влажность, поскольку процесс испарения воды заметно влияет на количество выделяемой энергии. Чтобы управлять процессом горения, необходимо тщательно контролировать количество воздуха, подаваемого в установку. Подача воздуха осуществляется с помощью вентилятора, для работы которого понадобится постоянный доступ к электроэнергии. Наличие вентилятора превращает пиролизный котел в электрозависимую установку. При отключении электроэнергии рекомендуется использовать источник бесперебойного питания UPS или другое аналогичное устройство.
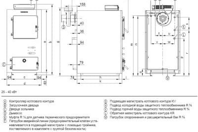
Разбор схемы, чертежей и расчетов
Чтобы лучше понять принцип работы устройства, рекомендуется изучить схему пиролизного котла.

Перед началом работ рекомендуется внимательно изучить схему устройства пиролизного котла, чтобы понять принципы его функционирования и избежать ошибок
На ней отражено положение таких необходимых элементов, как:
- отверстие для воздуха;
- камера сгорания;
- дымовые каналы;
- трубы для подачи и отвода воды;
- регуляторы;
- место установки вентилятора и т. п.
Поскольку пиролизный котел устройство довольно сложное, рекомендуется при его изготовлении придерживаться чертежа. Одна из самых распространенных моделей устройства, которая подходит для самостоятельного изготовления, представлена ниже:

На этом чертеже подробно представлена конструкция пиролизного котла, который можно сделать своими руками. Рекомендуется точно соблюдать все указанные разработчиком размеры
Обычно для частного дома используют котел мощностью 40 кВт. Если этот показатель необходимо увеличить или уменьшить, рекомендуется соответственно изменить и параметры устройства. Необходимые данные представлены в таблице:

Чтобы сделать своими руками пиролизный котел подходящей мощности, нужно изготовить элементы соответствующего размера. Правильное соотношение размеров гарантирует успешный результат
Котел мощностью 25-30 кВт может стать оптимальным выбором для небольшого дома. Изготовление небольшого агрегата позволит сэкономить и время, и средства.
Как самостоятельно собрать такой агрегат?
Чтобы сделать такое сложное устройство, понадобится достаточно широкий набор инструментов и материалов. Вот примерный их список:
- электрическая дрель;
- сварочный аппарат (рекомендуется модель постоянного тока);
- несколько упаковок электродов;
- болгарка;
- шлифовальный круг на 125 мм;
- отрезной круг на 230 мм;
- металлические листы 4 мм;
- набор труб различного диаметра;
- набор профтруб 2 мм;
- несколько полос стали разной ширины и толщины;
- вентилятор;
- термодатчик.
Рекомендованная толщина стали, которая используется при самостоятельном изготовлении пиролизного котла, составляет 4 мм. Однако в целях экономии для корпуса устройства можно использовать трехмиллиметровую сталь.

Корпус пиролизного котла следует изготавливать из достаточно прочной стали, способной выдержать высокую температуру. Толщина металла должна быть не менее 3 мм
Тщательное изучение схем, чертежей и устройства пиролизного котла позволяет приступить собственно к его изготовлению. С помощью болгарки вырезаются необходимые элементы. Затем используется сварочный аппарат.
Кроме того, следует придерживаться ряда рекомендаций:
- Загрузочное отверстие для топлива у самодельных моделей обычно размещают несколько выше, чем у обычных твердотопливных котлов.
- Обязательно нужно установить ограничитель, который позволит контролировать количество воздуха, поступающего в топливную камеру, а также своевременно подкладывать дрова или брикеты.
- Для изготовления ограничителя можно использовать трубу диаметром около 70 мм, длиной чуть больше корпуса устройства.
- К нижней части ограничителя следует приварить стальной диск, образующий со стенками трубы зазор около 40 мм.
- Для установки ограничителя в крышке котла следует сделать соответствующее отверстие.
- Загрузочное отверстие для дров следует сделать прямоугольным. Закрывают это отверстие дверцей, со специальной стальной накладкой, обеспечивающей надежное прилегание.
- Ниже необходимо сделать отверстие для удаления золы.
- Трубу, по которой движется внутри котла теплоноситель, нужно сделать с изгибом, чтобы максимально улучшить отдачу тепла.
- Количество теплоносителя, поступающего в котел, можно регулировать с помощью установленного снаружи вентиля.
Если после первого пуска котла в продуктах горения отсутствует угарный газ, значит, конструкция выполнена точно и функционирует правильно. В дальнейшем следует регулярно контролировать состояние сварных швов котла и своевременно очищать его от накопившейся золы и копоти.
Обратите внимание! Очень удачным сочетанием считается использование пиролизного котла не с традиционным водяным отоплением, а с системами обогрева воздухом. Воздух в этом случае передается по трубам, а возвращается в систему по полу. Такая система не замерзнет при резком похолодании, в случае отъезда владельцев дома нет необходимости сливать теплоноситель.
Рекомендации по установке готового котла
При установке пиролизного котла следует учесть все требования пожарной безопасности, поскольку процессы горения в таком устройстве могут достигать очень высоких температурных показателей.
- Под котельную следует выделить отдельное нежилое помещение.
- Для правильного вентилирования воздуха в котельной понадобится отверстие около 100 кв. см.
- Котел устанавливают на бетонный или кирпичный фундамент.
- Перед топочными камерами монтируют защиту из двухмиллиметрового листового металла.
- Между стенами, мебелью и корпусом устройства следует оставить не менее 200 мм свободного пространства.
Рекомендуется также тщательно утеплить дымоход, по которому отводятся продукты горения. Отсутствие теплоизоляции не только приведет к теплопотерям, но и вызовет образование дегтя и конденсата, которые способствуют преждевременному износу оборудования и многочисленным поломкам.
