Проект и строительство гостевого дома с баней своими руками
Гостевой домик-баня может стать отличным местом для уединенного отдыха или, наоборот, пристанищем для шумной компании. Наличие этого объекта на дачном участке решает массу проблем, среди которых дефицит мест для размещения гостей, а также возможность попариться и отметить какое-либо событие с друзьями, не доставляя хлопот домочадцам.

Проект гостевого дома с баней
Сооружение гостевого дома-бани при наличии работящих рук, навыков строительства и необходимой суммы денежных средств становится достаточно нехитрым делом. Преодоление каких же трудностей ожидает хозяев дачного участка при принятии решения о создании такого строения своими руками?
Выбор проекта и составление сметы
В первую очередь необходимо определить, какой дом-баню предстоит построить? На сегодняшний день наибольшей популярностью пользуются двухъярусные конструкции, первый этаж которых занимает баня с парной, а второй отводится под комнаты для отдыха. О создании гостевого дома-бани такого образца и пойдет речь дальше. Данное сооружение имеет ряд плюсов:
- не занимает много места – достаточно 25-30 м2 участка;
- экономит денежные средства — исключаются траты на дополнительные метры фундамента и крыши, на отопление;
- повышает уровень комфорта – отпадает необходимость выходить после купания из бани на улицу, достаточно просто подняться на второй этаж.
Перед началом строительства необходимо озадачиться созданием плана будущего дома. Определитесь с местоположением гостевого дома-бани на участке. Огромное количество различных проектов построения можно найти в интернете, однако, наиболее интересным является вариант самостоятельной разработки чертежа.
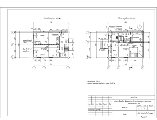
На первом этаже, как уже было сказано выше, следует разместить баню: предбанник или прихожую, помывочную и парную. Размеры этих комнат определяются из расчета не менее 3 кв.м. для комфортного пребывания одного человека. Особое внимание следует обратить на расположение печи: место для закладки дров должно быть выведено в предбанник (прихожую), нагревательная часть – в помывочную и парную, где дополнительно размещают камни для пара. При желании, можно оборудовать на первом этаже душ, небольшой бассейн, туалет, бильярдную и пр.

Чертеж первого этажа дома с баней
Второй ярус чаще всего отводится под отдых, причем все пространство оставляют как единой комнатой, так и разгораживают на отдельные.

Чертеж проекта гостевого дачного домика с баней
Определившись с распланировкой, переходим к составлению примерной сметы расходов. Основные ее статьи:
- фундамент;
- деревянные составляющие: материалы для сруба, пола, потолка, крыши, лестницы, крыльца, внутренних перегородок и пр.;
- кровля;
- утепление и пароизоляция: пергамин, рубероид, минеральная вата, пакля и пр.;
- фурнитура: скобы, гвозди, саморезы;
- окна, двери;
- печь;
- материалы для коммуникаций;
- материалы для внешней и внутренней косметической отделки.
Все вышеперечисленное можно закупить оптом, если позволяют денежные средства, либо частично, по мере необходимости. Первый вариант предпочтительнее тем, что на общий объем возможно начисление неплохих скидок и даже подарок в виде бесплатной доставки.
Подготовка участка, закладка фундамента и цоколя
Степень трудоемкости на данном этапе зависит от качества и состава почвы, ее заболоченности, наличия грунтовых вод. Подготовка участков с черноземом, песчаником или суглинком в относительной удаленности от водоемов сводится к выкашиванию травы, спиливанию мешающих деревьев, корчеванию пней и выравниванию поверхности. На заболоченных участках придется производить частичную замену грунта или создавать систему водоотводов.
При выборе фундамента лучше всего остановиться на столбчатом из асбестоцементных труб. Количество столбов для него рассчитывают исходя из следующих требований: в каждом углу, вдоль стен через метр, вдоль перегородок через полтора метра. Столбы оборачивают куском рубероида во избежание примерзания к почве, устанавливают в ямы, глубиной около полутора метров, на дно которых насыпан слой песка. Далее в трубы заливают 20 см бетона, обсыпают щебнем и утрамбовывают.

Возведение фундамента для дома
Для создания цоколя необходимо выкопать траншею глубиной 30 см, ее дно засыпать песком и обычной кладкой выложить кирпичами на всю толщину труб фундамента. По мере создания в кладку вмуровывают трубы вентиляции, а саму кладку проволокой крепят к столбам.

Ленточный фундамент для дома
Готовый фундамент гидроизолируют следующим образом: поверхность цоколя смазывают горячим битумом, на который наклеивают листы рубероида, затем снова слой битума и слой рубероида.
На месте расположения помывочной и парной сооружают водосборник. Для этого выкапывают яму глубиной до одного метра, стенки которой утрамбовывают, промазывают глиной или цементом. Из ямы выводят к канализации трубу, примерный диаметр который от 15 см.
Пол, стены, крыша: выбор материалов, процесс сборки и отделки
На готовый фундамент устанавливают лаги для пола из деревянного бруса размера 150х150 мм, затем настилают черновой пол, слои пароизоляции, утеплителя и чистовой пол. Черновой пол в помывочной и парной следует укладывать с наклоном в 10 градусов для обеспечения стока воды.
В качестве материала для сруба лучше всего рассматривать оцилиндрованное или ручной рубки бревно, профилированный или естественной сушки обрезной брус. Перед началом монтажа необходимо покрыть все составляющие антисептиком. Самое нижнее бревно или брус должно быть несколько больше остальных по размеру. Угловое соединение может быть различным: «в лапу» или «в чашу». Каждый венец обязательно перекладывают мхом, паклей, льном или джутом. Монтируют перегородки. Внутреннюю часть сруба покрывают пергамином и утеплителем, в зависимости от предпочтения, отделывают вагонкой или имитацией бруса из дерева различных пород.

Процесс возведения стен дома
Потолок, он же и перекрытие между этажами, состоит из лаг размера 150х150 мм, на которые сверху гвоздями прибивают дощатый настил толщиной 3-4 см. Для создания крыши необходимы балки размера 100х80 мм. В последних венцах через каждый метр проделывают выемки глубиной 7,5см, в них монтируют балки, верхние части которых соединяют между собой брусом. Всю конструкцию скрепляют скобами и покрывают обрешеткой из досок толщиной в два сантиметра. На внешнюю часть обрешетки крепят материал кровли – рубероид, профнастил, сталь, черепицу, шифер и пр. С внутренней стороны обрешетку крыши и потолок покрывают слоем гидро- и пароизоляции, утепляют, оббивают вагонкой или имитацией бруса.

Возведение крыши
Печь для парной
Выбор самого важного элемента бани зависит от площади и интенсивности обогрева, а также вида топлива. Чаще всего используют так называемую печь-каменку периодического действия, металлическую, впоследствии обкладываемую кирпичом и камнем. Ее можно купить в готовом виде либо, если обладаете специальными навыками, смонтировать на месте самостоятельно. Для топки такой печи подходят дрова и уголь.

Самодельная металлическая печь для бани
Подводя итог, следует сказать, что средний срок службы гостевого дома-бани равен 50 годам. Использование качественных материалов и подход к делу «с душой» продлевает этот срок на неограниченный период времени, в течение которого строение будет радовать вас и вызывать зависть соседей.
