Проекты двухэтажных домов из пеноблоков
В последнее время очень популярным стало строить дом «своими руками». Это не только выгодно, но и приятно: даёт ещё один повод гордиться собой. А любители мистицизма утверждают, что такой дом будет обладать особой положительной аурой. Но оставим лирику. Вполне реальные преимущества налицо – вы сами решаете, как располагать комнаты в доме и, разумеется, неплохо сэкономите на рабочей силе.

Проекты двухэтажных домов из пеноблоков
Пеноблоки имеют ряд преимуществ перед другими стройматериалами. Совокупность нижеприведённых характеристик делает данный материал универсальным:
- Прочность.
- Экологическая безопасность, не токсичность.
- Крупногабаритность, способствующая более быстрому возведению стен.
- При необходимости, материал легко режется ножовкой.
- Если вы задумаете многосложный проект, предусматривающий комбинированное применение строительных материалов, пеноблок будет как нельзя кстати, ведь он легко сочетается с большинством видов строительного сырья.
- Благодаря пористой структуре, пенобетон обладает способностью «дышать», при этом сохраняя тепло. Вы не замёрзнете зимой и круглый год ваш дом будет наполнен лёгким, не застоявшимся воздухом.
- Звукоизоляционные качества.
- Пожаробезопасность.
- Лёгкость. Благодаря невысокой плотности, материал не очень тяжёл. Это значит, что вам не нужно неделями потеть, пытаясь установить сверхпрочный фундамент.
Разработка проекта
Начинать следует с плана размещения дома на участке. Определите наиболее солнечную и теневую стороны. Следует учитывать, что предусмотрев большие окна на стороне солнца, вы обеспечите несколько комнат повышенной освещённостью и теплом. Исходя из того, какими финансовыми возможностями вы располагаете, продумайте габариты будущего дома. Проект 9×9 – типичный, наиболее популярный вариант. Такие размеры позволяют удобно расположить комнаты на первом и втором этажах. Ниже приведён пример плана первого этажа.

План проекта первого этажа
Данный план предусматривает в западном крыле первого этажа расположение (в приведённой последовательности, от юга к северу) котельной, санузла, холла и прихожей или тамбура. Правое крыло представляет собой одну огромную комнату, с условным разделением (без стены по центру) на кухню-столовую (южная часть) и гостиную (западная часть помещения).
В индивидуальный проект можно включить всё, чего жаждет фантазия – пристроенный гараж, функциональный подвал, где можно разместить мастерскую, личный кабинет, комнату для хобби или целый спортзал. Сейчас очень модными стали мансарды на втором этаже. Для тех, кто не знает, мансарда это нечто вроде жилого чердака, обустраиваемого в домах с мансардной крышей. По типу тех жилых конструкций, которые мы привыкли видеть в голливудских фильмах, где часто показывают семью, проживающую в двухэтажном доме, где мансарда почти всегда является комнатой подростка. Вам эти клише ни к чему, так что можете устроить в мансарде что угодно – бильярдную, библиотеку, зал трофеев, комнату для хранения коллекции, если увлекаетесь коллекционированием чего-либо.
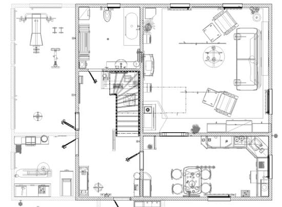
На картинке ниже вы найдёте ещё один вариант проекта первого этажа, более подробный, с проработкой некоторых элементов интерьера, предметов быта, мебели.

Подробный план первого этажа
Разрабатывая проект, учтите несколько нюансов:
- Лучше всего, в процессе работы, время от времени консультироваться с профессиональным архитектором, показывая ему свои чертежи.
- Следует обязательно проанализировать состав почвы, определить глубину, на которой находятся грунтовые воды; неплохо бы даже попросить специалистов провести геологическую экспертизу.
- Если тип грунта на вашем участке определён как пучинистый , продумайте момент утепления фундамента. Грунт имеет особенность расширятся при слишком низких температурах, таким образом на фундамент будет оказано давление, которое может стать причиной появления трещин в фундаменте и даже последующего разрушения его отдельных сегментов.
Этапы разработки проекта:
1. Рассчитать толщину стен. Строительные нормы предполагают, что кладка в 10 миллиметров выдерживает массу в 10 тонн. Определите вес кровельных материалов, перекрытий. Так как пенобетон обладает высокими теплоизоляционными свойствами, для вашего комфорта будет вполне достаточно стен толщиной в 300 миллиметров. Такие стены не уступят кирпичной кладке в прочности и при этом превзойдут её по сохранению тепла.
2. Соберите семейный совет. Пусть все выскажут свои пожелания на предмет того, сколько комнат они хотят видеть в новом доме и как хотели бы их расположить. Попытайтесь никого не обидеть, при этом учитывая практичные моменты: комнаты пожилых людей должны находиться на первом этаже, если у вас большая семья, не мешало бы сделать две ванные комнаты и т.д. Найдите современную компьютерную программу по проектированию. Разобравшись в ней, как следует вы не только упростите процесс составления проекта и расчёта всех необходимых величин (количество стройматериалов, габаритные параметры и т.д.), но и сможет устроить настоящую прогулку по своему будущему дому, подробно осмотрев каждый миллиметр разработанного вами и созданного искусственным интеллектом трёхмерного пространства. Таким образом вы сможете узнать, действительно ли ваш замысел создаст комфортное жилище. На рисунке ниже вы увидите пример виртуального проекта первого этажа.

Проект двухэтажного дома изнутри
3. Тщательно продумайте расположение окон и дверных проёмов. Обязательно отметьте их на чертеже проекта. Включите фантазию. Попробуйте представить, насколько освещёнными будут комнаты, насколько удобно будет по ним передвигаться.
4. Очень важный момент – лестница на второй этаж. Она может быть прямой или изогнутой. Последний вариант сэкономит пространство, что немаловажно. Желательно, чтобы ступени не были слишком высокими. Случались ошибки, благодаря которым и молодому человеку было трудно взобраться на второй этаж по лестнице без помощи рук.
5. Выберите тип кровельного материала. Не забывайте – большая часть тепла уходит из жилья именно через крышу; позаботьтесь о её многослойном утеплении.
6. Полы должны быть тёплыми. Для этого можно использовать и традиционные, привычные способы, и инновационные методы, включающие в себя и безопасный электронагрев.
Планирование отделки
Есть немало вариантов, всё зависит от ваших финансовых возможностей. Часто для наружной отделки фасада выбирают сайдинг, плитку или облицовочный кирпич. В последнее время очень популярна фасадная штукатурка. Этот материал создаёт для дома дополнительную тепло- и звукоизоляционную защиту. Во внутренней отделке спектр возможных материалов бесконечно широк – от гипсокартона до кафеля . Здесь следует ориентироваться на свой личный вкус а также на практичность и эстетическую привлекательность. Ниже изображён ещё один вариант проекта и фотография готового дома.

Дом из пеноблоков
Инженерные коммуникации
Ваш проект должен учитывать удобное расположение водопровода, канализационной системы, проведение электричества и газа, вентиляционные ходы, в общем, все элементы коммуникаций, необходимых в жилище современного человека.
Ландшафт
Последний этап – разработка ландшафтного дизайна вашего участка. Определитесь с местом размещения хозяйственных сооружений. Можно возвести беседку, баню, постройку для домашнего скота, определить участок под огород и сад. Не забывайте соблюдать нормы пожарной и санитарной безопасности.
